Sprache:

Edit Template

Sprache:

Edit Template

Villa-Projekt mit Lizenz in Sa Torre Nova bei Cala Santanyí

Auf einen Blick:

Ort Santanyi
Objektart Villa
Anzahl Schlafzimmer 5
Anzahl Badezimmer 5
Kaufpreis 3.400.000 €

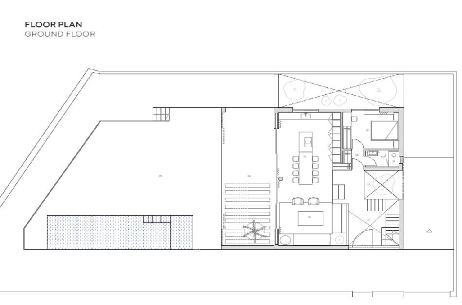
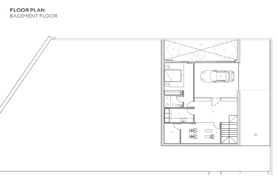
Diese Villa entsteht in der ruhigen Wohnlage Sa Torre Nova, zwischen Cala Figuera und Cala Santanyí im Südosten Mallorcas. Das ca. 650 m² große Grundstück verfügt über ein genehmigtes Projekt mit gültiger Baugenehmigung. Da der Bau noch nicht begonnen wurde, bietet es Käufern sowohl Planungssicherheit als auch Flexibilität in der Umsetzung.

Vorgesehen sind ca. 110 m² im Erdgeschoss, 102 m² im Obergeschoss und ein Kellergeschoss von rund 117 m². Moderne Linien treffen auf traditionelle Materialien wie Kalkmörtel, Naturstein und Eichenholz. Großzügige Glasflächen schaffen Transparenz und Licht, ein Atrium mit Olivenbaum setzt markante architektonische Akzente.

52 m² überdachte Flächen, 72 m² Terrassen und ein 32 m² Pool bieten vielseitige Außenbereiche für mediterranes Leben. Modernste Haustechnik mit Fußbodenheizung, Klimatisierung und einer Photovoltaikanlage sichert ganzjährigen Komfort. Eine maßgefertigte Küche mit Miele-Geräten rundet die hochwertige Ausstattung ab.

Ein abgestimmtes Möblierungs- und Beleuchtungskonzept ergänzt das Projekt und kann auf Wunsch übernommen werden. Die Lage in Sa Torre Nova verbindet Ruhe und Privatsphäre mit Nähe zu Stränden und Restaurants in Cala Figuera und Cala Santanyí. Der Ort Santanyí mit seinen Cafés und kulturellen Angeboten ist in wenigen Minuten erreichbar, der Flughafen Palma in ca. 45 Minuten.

Exposé teilen:

QR CODE ZU
DIESEM OBJEKT

loading...

IHR SPEZIALIST IM SÜDOSTEN MALLORCAS SEIT 1982

Inmobiliaria Lucie Hauri

C/ Bisbe Verger, 26
07650 Santanyí
Mallorca – España

Objektdaten:

Ort Santanyi
Objektart Villa
Anzahl Schlafzimmer 5
Anzahl Badezimmer 5
Ausrichtung Südost
Heizung Fussboden
Klimaanlage Ja
Anzahl Stellplätze 1
Stellplatzart Garage
Kaufpreis 3.400.000 €

Ausstattung:

Anzahl Schlafzimmer 5
Anzahl Badezimmer 5
Klimatisiert Ja
Garage Garage

Energieausweis

Energie­ausweistypBedarfsausweis
Energieeffizienzklassein progress
HeizungsartFußbodenheizung

Lage

Lagebeschreibung:

Santanyí ist ein charmantes Städtchen im Südosten Mallorcas, bekannt für seine Sandsteinhäuser, Kunstgalerien und den lebhaften Wochenmarkt. Der Ort verbindet ursprünglichen Charme mit einer internationalen Atmosphäre und bietet eine vielfältige Gastronomie. Die Küstenorte mit ihren Stränden sind in wenigen Minuten erreichbar, zum Flughafen Palma fährt man rund 45 Minuten. Tipp: Der samstägliche Wochenmarkt ist ein Erlebnis für alle Sinne und ein beliebter Treffpunkt.

Objektdaten:

Ort Santanyi
Objektart Haus
Anzahl Schlafzimmer 5
Anzahl Badezimmer 5
Ausrichtung Südost
Heizung Fussboden
Klimaanlage Ja
Anzahl Stellplätze 1
Stellplatzart Garage
Kaufpreis 3.400.000 €

Ausstattung:

Anzahl Schlafzimmer 5
Anzahl Badezimmer 5
Klimatisiert Ja
Garage Garage

Energieausweis

Energie­ausweistypBedarfsausweis
Energieeffizienzklassein progress
HeizungsartFußbodenheizung

Lage

Lagebeschreibung:

Santanyí ist ein charmantes Städtchen im Südosten Mallorcas, bekannt für seine Sandsteinhäuser, Kunstgalerien und den lebhaften Wochenmarkt. Der Ort verbindet ursprünglichen Charme mit einer internationalen Atmosphäre und bietet eine vielfältige Gastronomie. Die Küstenorte mit ihren Stränden sind in wenigen Minuten erreichbar, zum Flughafen Palma fährt man rund 45 Minuten. Tipp: Der samstägliche Wochenmarkt ist ein Erlebnis für alle Sinne und ein beliebter Treffpunkt.

IHR SPEZIALIST IM SÜDOSTEN MALLORCAS SEIT 1982

Ähnliche Objekte:

Referenz: 2638
Region: Santanyí
Preis: 3.100.000 €
Referenz: 6146
Region: Santanyi
Preis: 2.750.000 €
Referenz: 2662
Region: S`Horta
Preis: 3.950.000 €
Referenz: 5184
Region: Ses Salines
Preis: 3.600.000 €
Referenz: 2631
Region: Alquería Blanca
Preis: 2.800.000 €